Bowman Remodel


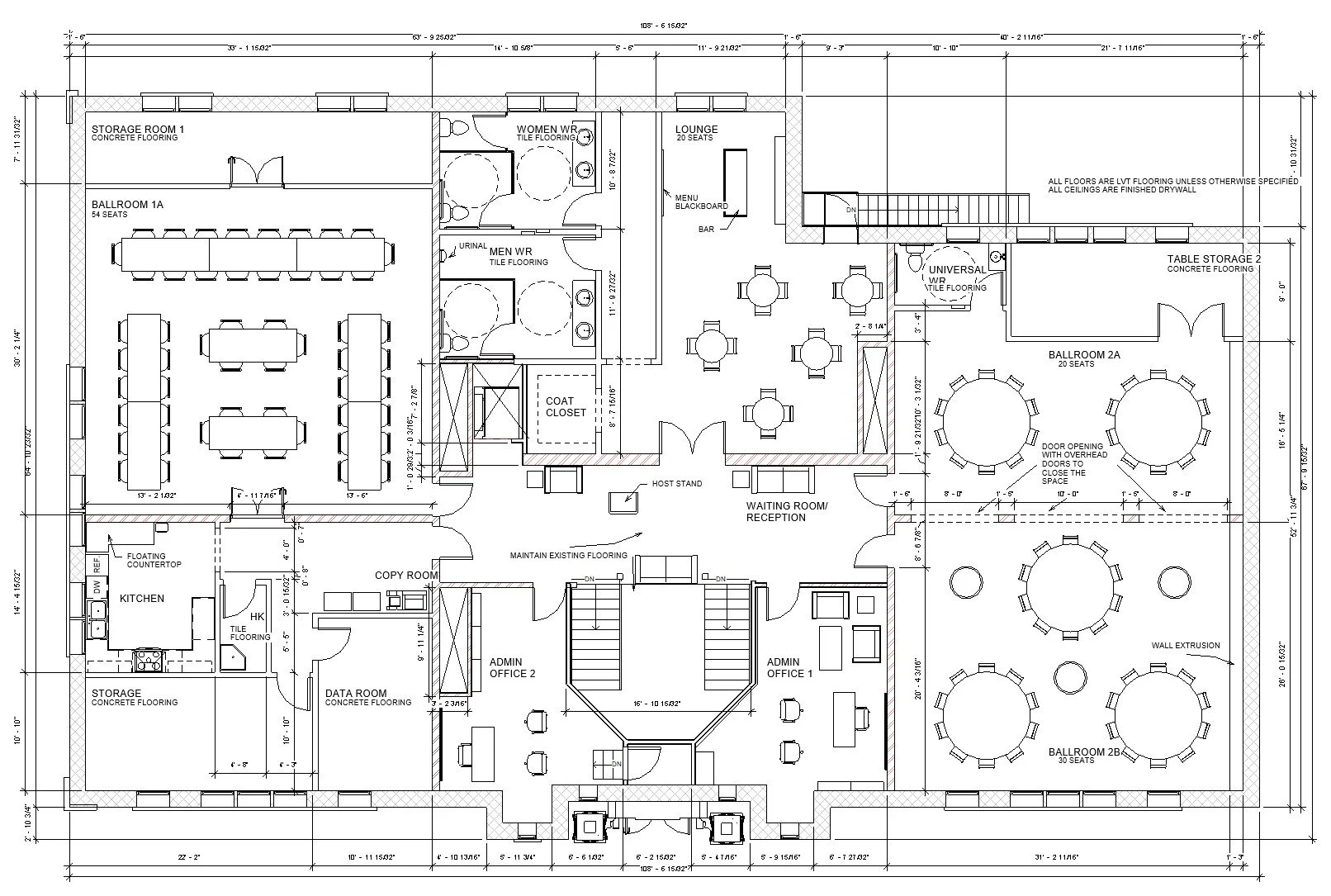
The Bowman Building is a historic landmark in Lethbridge, AB. This project focused on transforming its second floor into a functional and modern event space while preserving its architectural character.

Guided by a set of design requirements, I reimagined the existing floor plan, developed a demolition strategy, and reconstructed the space with a contemporary aesthetic. The renovation balances modern functionality with the building’s historic charm, creating a versatile venue for various events.

This project was created using the following software: Revit, SketchUp & Enscape


Previous
Previous

Sword & Dice - Retail and Condos

Next
Next

Commercial Redesign